竹北富宇水舍秀樹三房
竹北買屋 /
竹北買房
-
已售出!竹北高鐵大三房【富宇水舍秀樹】~竹北買屋阿水
預約看屋
更多優質好屋: 155
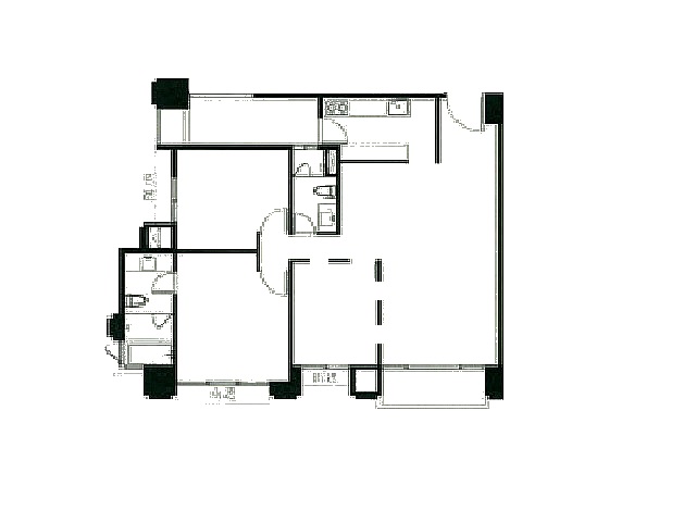
※ 房屋照片僅反應使用現況,用途以實際合法文件為準。若法定用途與現況不同,可能違法並有相關風險,請購屋或承租前詳加確認,以保障權益。
詳細資訊
管理費:3267 元/月
朝向方位:坐東北朝西南
鄰近學校:東興國小/東興國中
鄰近公園:運動公園
生活機能:頂好超市
附近交通:竹北高鐵
物件資訊內容以登記簿謄本或預售屋買賣契約為準,若有疑問請洽承辦人員。
特色說明
圖片介紹
















地圖 (點擊顯示地圖)
問與答
賣家資訊
竹北買屋阿水
魏少庭(仲介,收取服務費)
暱稱:竹北阿水
專業品質:
服務態度:
房仲電話:0980-583252
讚:38 (加入)竹北高鐵嘉豐 加盟店
經紀業名稱: 世大興股份有限公司
證號: 219813
【竹北買屋買房子賣屋賣房子*竹北房仲推薦ptt竹北阿水*竹北仲介推薦】歡迎屋主委託銷售!最佳業務員為您服務,沒有賣不掉的房子專營大竹北區域~永慶集團竹北阿水0980583252,LINE ID:aton0218
已售出!竹北高鐵三房【嘉璟臻愛竹北】低總價.中央公園雙車
新竹縣 竹北市
已售出!竹北縣三【時代花園大廈】視野大三房.安興國小
新竹縣 竹北市
已售出!竹北高鐵四房【豐邑雅砌】綠園道朝南外棟.衛浴雙開窗
新竹縣 竹北市
已售出!竹北科大三房【金連城四君子】科大首購三房
新竹縣 竹北市
已售出!竹北司法特區三房【德鑫希望】成功國中興隆國小
新竹縣 竹北市
已售出!竹北高鐵兩房【佳鋐原美館】溫馨美裝潢
新竹縣 竹北市
已售出!竹北四房【椰林蘭亭序】高樓公園視野戶.興隆國小
新竹縣 竹北市
已售出!竹北華興三房【嘉懋凡賽斯花園】竹北首購裝潢美三房
新竹縣 竹北市
已售出!竹北科大兩房【寶佳台科晶品】台科大視野兩房
新竹縣 竹北市
已售出!竹北高鐵三房【嘉璟臻觀】全新高樓亮三房.橋下道路
新竹縣 竹北市
預約看屋
發問
收藏房屋土地
分享

















我家粉絲團