巴克禮公園
東區買屋 /
東區買房
-
店長推薦|東區|副都心重劃區|富立建設三房|平面車位
預約看屋
更多優質好屋: 29
※ 房屋照片僅反應使用現況,用途以實際合法文件為準。若法定用途與現況不同,可能違法並有相關風險,請購屋或承租前詳加確認,以保障權益。
- 總價:2088 萬 (含車位價)
- 參考單價:37.23 萬/坪
- 地址:
台南市
東區
崇賢三路
地圖
🏷️ 查看區域實價登錄
- 社區:富立和築/和築真邦
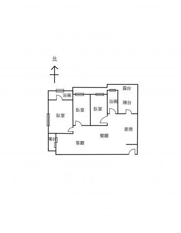
- 格局: 3房(室) 2廳 2衛
- 總坪數:56.08 坪 (包含車位面積)
- 主建物面積:29.55 坪
- 附屬建物面積:4.49 坪
- 共同使用:22.04 坪
- 土地面積:9.58 坪
- 樓別/樓高: 3樓 / 15樓
- 屋齡:9 年
- 法定用途:住家用
- 形式/類型:住宅/ 電梯大樓
- 車位:坡道平面式
- 電梯:有
詳細資訊
特色說明
圖片介紹











地圖 (點擊顯示地圖)
問與答
東區大樓別墅
東區大樓別墅
郭奕民(仲介,收取服務費)
暱稱:郭奕民 房研社-民哥
專業品質:
服務態度:
房仲電話:0978-133352
訂閱:1 (加入)台南崇明銘星 加盟店
經紀業名稱: 銘星不動產仲介經紀有限公司
證號: (106)登字第321114號
東區大樓別墅 郭奕民 0978133352
您好,我是您可信賴的房地產專業經紀人,擁有誠實、負責、細心和專業的特質。自踏入這個行業以來,我榮獲多項獎項,包括107年至113年連續獲得的400萬及500萬經紀人獎項,以及單月百萬經紀人的殊榮,這些成績不僅展現了我在業界的專業能力,也反映了客戶對我的信任。
我專注於大台南區域,尤其是東區、永康區及大樓透天型產品,並且精通市場行情的快速提供及專業稅費規劃。不論是不動產的買賣交易,或是網路行銷曝光,我都能為客戶提供全方位的服務。
如果您在尋找專業的房產顧問,歡迎隨時聯繫我!讓我們一起實現您的房地產夢想!
北區|近成大、台南火車站|開元商圈|低總價小資兩房
台南市 北 區
店長推薦|復興學區|雙面採光三房|平面車位
台南市 仁德區
專任|近東區副都心重畫區|全新未住三房|平面車位
台南市 仁德區
東區|近虎尾寮|復興國中小|大三房|平面車位
台南市 東 區
店長推薦|太子建設|面公園|大坪數四房|平面車位
台南市 東 區
東區大樓別墅 盺願景高樓景觀面樹海三房大平車 降價!!!
台南市 永康區
東區大樓別墅【僑昱 I Life|百坪高樓層優雅名邸】
台南市 北 區
專任│近新光三越、建興國中│一層兩戶│四房有車位
台南市 中西區
店長推薦|近星鑽特區、河樂廣場|低總價套房|有陽台
台南市 中西區
店長推薦|近南紡購物中心、成大|東寧商圈一樓寓|有車庫
台南市 東 區
預約看屋
發問
收藏房屋土地
分享











我家粉絲團