北港透天
北港買屋 /
北港買房
-
大同路黃金透天店面 北港房地買賣
預約看屋
更多優質好屋: 27
※ 房屋照片僅反應使用現況,用途以實際合法文件為準。若法定用途與現況不同,可能違法並有相關風險,請購屋或承租前詳加確認,以保障權益。
- 總價:
1120 萬
968 萬 - 參考單價:34.23 萬/坪
- 地址:
雲林縣
北港鎮
文化路
地圖
🏷️ 查看區域實價登錄
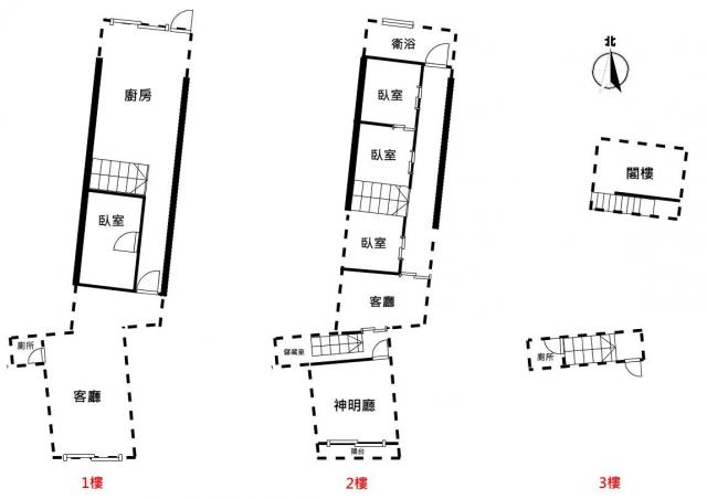
- 格局: 3房(室) 3廳 3衛
- 總坪數:28.28 坪 (不含車位面積)
- 主建物面積:28.28 坪
- 土地面積:25.1 坪
- 樓別/樓高: 整棟 / 3樓
- 屋齡:52 年
- 法定用途:店鋪
- 形式/類型:住宅/ 透天厝
詳細資訊
朝向方位:坐東北朝西南
鄰近學校:縣立北辰國小,國立北港高中,國立北港農工,縣立建國國中
鄰近公園:北港運動公園
附近交通:北港遊客中心站
面臨路寬:15米
物件資訊內容以登記簿謄本或預售屋買賣契約為準,若有疑問請洽承辦人員。
特色說明
圖片介紹



















地圖 (點擊顯示地圖)
我家AI分析|物件診斷一次看
本內容由AI輔助分析整理,僅供參考,實際情況仍建議依此房仲說明與個人需求判斷。
您好,針對您提供的物件資料,以下從一般購屋者的角度進行分析,幫助您釐清此物件的價值與風險。
1. SWOT 分析
| 面向 | 內容 |
|---|---|
| 優勢 (Strengths) | 1. 地段優越:位於北港媽祖廟商圈核心,人流密集,生活與商業機能極佳。 2. 稀缺資源:前後雙面臨路,通風採光佳,且面臨 15 米寬大道,招牌曝光度高。 3. 空間實用:3 層透天格局,3 房 3 廳配置,適合自住或作為家族事業基地。 4. 周邊完善:鄰近多所學校、公園及遊客中心,生活便利性高。 |
| 劣勢 (Weaknesses) | 1. 屋齡偏老:已有 52 年屋齡,可能面臨管線老舊或結構維護問題。 2. 無車位配套:總坪數不包含車位,對於有車族而言,需另行規劃停車問題。 3. 單價考量:每坪 34.23 萬的單價,需斟酌是否高於同區域新屋或中古屋行情。 4. 樓層高度:整棟 3 樓透天,需考量家中有無長輩,爬樓是否方便。 |
| 機會 (Opportunities) | 1. 投資價值:黃金店面釋出機會少,商業潛力高,具收租或經營潛力。 2. 觀光效應:北港媽祖節慶吸引大量人潮,有利於店面營業或民宿投資。 3. 空間改造:老宅若有翻新需求,可透過現代化裝修提升租賃吸引力與居住品質。 4. 多元用途:住宅與店鋪混合,彈性大,適合家庭創業或長期持有。 |
| 威脅 (Threats) | 1. 維護成本:高齡建築隨時間推移,維修基金或整修費用可能隨之增加。 2. 市場流動性:非都會區老舊店面,未來轉手速度可能不如新成屋快速。 3. 法規風險:需確認土地及建物法規是否允許混合使用,或未來是否有徵收或建管變更風險。 4. 居住舒適度:52 年房產在隔音、防水或現代化設施上可能不如新建築。 |
2. 物件評論
購買建議:適合特定需求者,投資或家族使用首選,非自住首購推薦。
主要理由: 此物件最大的亮點在於其「地段價值」與「商業潛力」。位在北港媽祖廟商圈且雙面臨路,非常適合用於開設老店、品牌展示或投資收租,具有稀缺性。然而,對於尋求現代化居住體驗的買家,52 年的屋齡及無車位配套是明顯的硬傷,未來可能需投入一筆整修資金。若您具備長期持有的耐心,或計劃在此進行家族事業經營與置產傳承,此物件具有很高的持有價值;但若主要目的為短期置產或偏好新穎居住環境,則需慎重評估其維修成本與轉手流動性。
問與答
北港房地買賣
北港房地買賣
蔡佳育(仲介,收取服務費)
暱稱:蔡佳育
專業品質:
服務態度:
房仲電話:0935-627110
訂閱:1 (加入)大家房屋 北港財神 加盟店
經紀業名稱: 富泰房屋有限公司
證號: (111)登字第419799號
北港房地買賣 蔡佳育 0935627110
預約看屋
發問
收藏房屋土地
分享



















我家粉絲團