3房、美都薪豐、景觀
新豐買屋 /
新豐買房
-
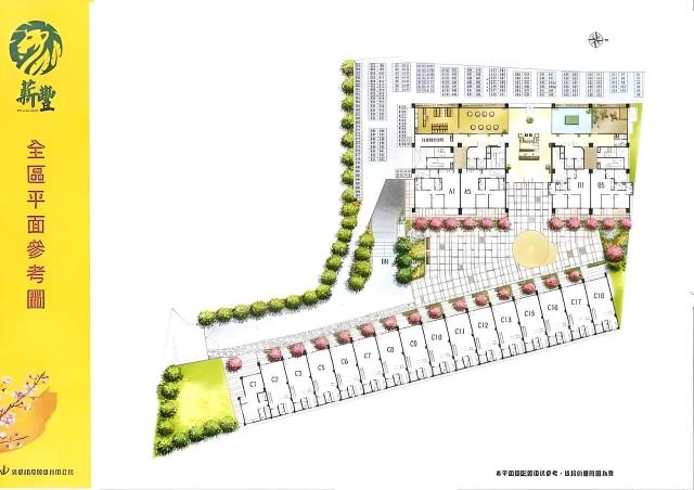
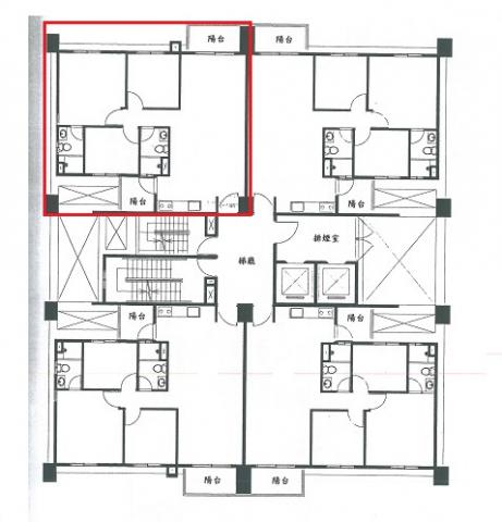
【美都薪豐】海景視野景觀三房+平車{{新竹首購推薦}}
預約看屋
更多優質好屋: 158
※ 房屋照片僅反應使用現況,用途以實際合法文件為準。若法定用途與現況不同,可能違法並有相關風險,請購屋或承租前詳加確認,以保障權益。
詳細資訊
特色說明
圖片介紹




















地圖 (點擊顯示地圖)
問與答
新竹首購推薦
新竹首購推薦
陳寶如(仲介,收取服務費)
暱稱:台慶陳寶寶
專業品質:
服務態度:
房仲電話:0985-658750
讚:8 (加入)台慶新竹星都滙 加盟店
經紀業名稱: 理想家園不動產仲介經紀有限公司
證號: (99)登字第139558號
您好,我是 陳寶如,朋友們都親切地叫我 陳寶寶
⭕現任 台慶不動產 新竹星都滙加盟店 店經理
⭕所屬團隊|台慶新竹好市多團隊
⭕自民國99年(2010年)起踏入房仲業,至今已累積多年實戰經驗,專精於住宅買賣、土地與預售屋交易,以及不動產投資規劃。
⭕ 我秉持 誠信服務、用心經營 的理念,從客戶角度出發,提供最貼近需求的專業建議與協助。
不論您是:
✔️ 首次購屋
✔️ 換屋升級
✔️ 投資置產
✔️ 想了解市場動態
我都能成為您值得信賴的房產諮詢人員。
⭕深耕新竹在地,我們團隊具備完整資源與默契,致力打造 量身訂製的房產規劃服務,陪伴您每一步走得安心又踏實。
---
聯絡我
⁂ 電話| 0985-658-750
⇒ LINE| @843kebdc
⇒ 地址| 新竹縣竹東鎮旭光二路19號1樓
(台慶不動產 星都滙加盟店)
預售屋竹科關新商圈威尼斯湖畔A3F小豪宅+車位{新竹首購推薦}
新竹市 東 區
比佛利山莊稀有三面臨路美建地{新竹土地買賣}
新竹縣 寶山鄉
【新豐後湖漂亮農田】臨路、便宜、平坦、方正{新竹土地買賣}
新竹縣 新豐鄉
竹科光埔商業區富宇雲鼎店面{{新竹首購推薦}}
新竹市 東 區
竹北台元AI園區成家美屋況三房+車位{新竹首購推薦}
新竹縣 竹北市
【萬邦新邸】寶山採光便宜3房{新竹首購推薦}
新竹縣 寶山鄉
雲峰~輕奢精品3房B2(新竹首購推薦)
新竹市 東 區
近園區明湖路工業風低總價一樓(新竹首購推薦)
新竹市 東 區
(臻善)全新大四房大面寬5.8米雙車美墅{新竹首購推薦}
新竹市 北 區
愛迪生 | 綠意盎然 | 百坪美建地{新竹土地買賣}
新竹縣 寶山鄉
預約看屋
發問
收藏房屋土地
分享






















我家粉絲團